Lujo, innovación y confort junto a La Galiana Golf

790.000 €
Estado Como nuevo
Categoría Contactos > Casas
Ubicación Valencia
Vistas 0
Publicado 28/12/2025 02:03
ID #17668838317400

Comentario del anunciante

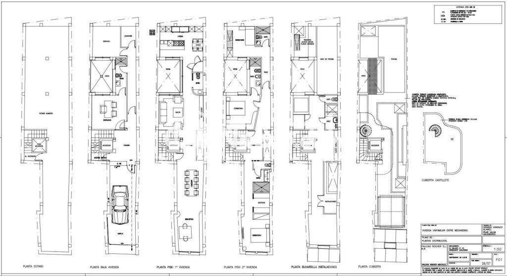
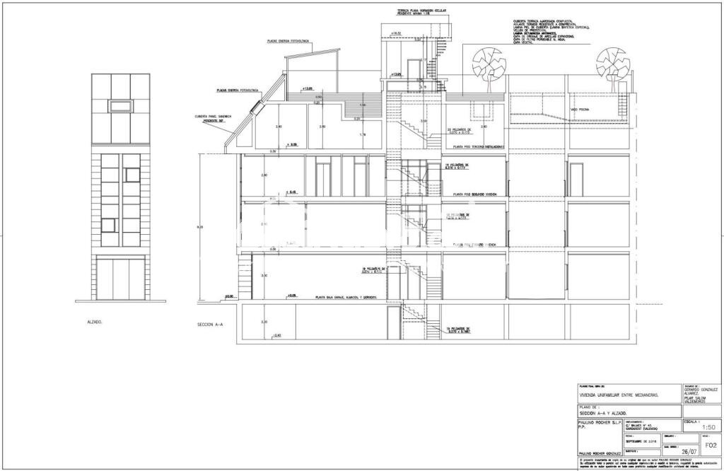
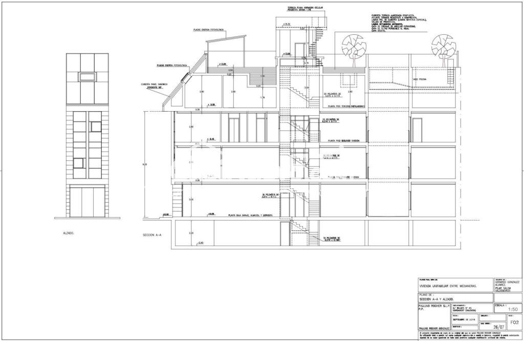
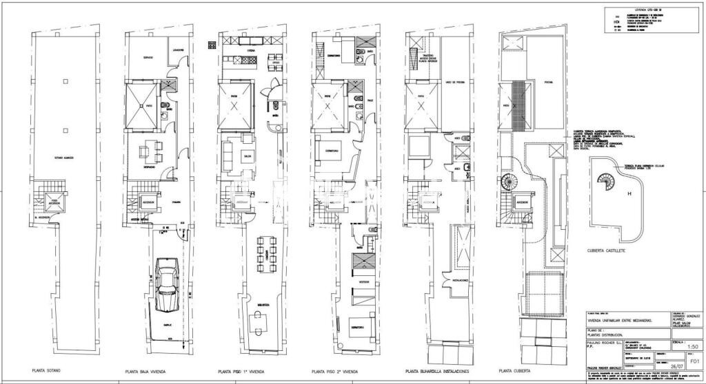
Extraordinaria vivienda sostenible de cinco plantas, con ascensor solar Otis y tejado fotovoltaico. La planta principal dispone de garaje, dormitorio medicalizable y zona de servicio; la primera planta, un espacio abierto con cocina profesional, comedor y sala de cine; la segunda, tres amplias suites con baños privados. En la tercera, zona wellness con sauna, jacuzzi y gimnasio. La terraza superior alberga una piscina con contracorriente, solárium, jardín mediterráneo y cocina al aire libre. Su diseño combina a la perfección lujo, tecnología y funcionalidad. Ubicada junto a La Galiana Golf, a 20 min de la playa, es una joya única por confort, privacidad y sostenibilidad. Cada detalle ha sido concebido para ofrecer bienestar, armonía y una conexión total con la luz y la naturaleza mediterránea. Si estás buscando una casa muy exclusiva para vivir , no puedes dejar pasar esta oportunidad ¡¡VEN A VERLA TE ENAMORARÁ!!
Ver más

Ubicación del anuncio

Listados donde aparece este anuncio

contactos de segunda mano #14